Столовые и кухни

Столовые и кухни

Помещения для приема пищи и столовые, кухни и здания для кейтеринга.

Питание на объекте — быстро и по нормам

Модульная столовая — это готовое решение для быстрого развертывания точек общественного питания на строительных площадках, промышленных предприятиях, вахтовых городках и временных лагерях. Такие объекты позволяют организовать приём пищи для сотрудников в соответствии с санитарными требованиями, предъявляемыми в Республике Беларусь. Мобильная кухня поставляется в полностью собранном виде: с установленной электрикой, теплоизоляцией, осветительными приборами и влагостойкой отделкой стен. Планировка адаптируется под конкретные задачи — можно выделить зоны приготовления пищи, раздачи, мойки и хранения. Внутри достаточно пространства для установки технологического оборудования: тепловых линий, моек, шкафов и вытяжных систем.

Гибкость установки и мобильность

Контейнер столовая не требует фундамента и может быть установлен на временной площадке без дополнительных строительных работ. Особенно актуальны такие решения при временном размещении рабочих или в условиях ограниченного пространства. При необходимости здание можно демонтировать и перевезти без потери характеристик, как полноценную мобильную столовую.

Индивидуальный дизайн и конфигурация

Фасады модулей при желании могут быть доработаны под конкретный архитектурный стиль: доступна внешняя отделка панелями, покраска в фирменные цвета и установка навесов. Модули легко объединяются в любую конфигурацию — это позволяет организовать поток посетителей и разграничить функциональные зоны.

 

Моментальный ввод в эксплуатацию

Когда требуется организовать питание на объекте — от стройплощадки до производственного кластера — оптимальным решением становится контейнер-кухня, купить который можно в качестве готового решения без дополнительных затрат. Независимо от того, требуется ли временная столовая для стройки или стационарный комплекс питания для предприятия — модульная столовая от Containex адаптируется под задачу и готова к работе сразу после установки.

Варианты планировки мобильной столовой

Конфигурация Площадь Пример размещения Подходит для
1 блок-контейнер ~15 м² кухня без посадки, зона приготовления вахтовая кухня, кейтеринг, временная точка
5 блок-контейнеров ~75 м² кухня + мойка + раздача столовая на стройке, питание персонала
10 блок-контейнеров ~150 м² кухня + мойка + раздача + посадка временное питание на производстве или базе

 

В комплекте:

В комплекте:

Пример пронумерованного списка:

  1. Модульная электрика по ГОСТу, встроенная в крышу и стеновые панели
  2. Внешний CEE-разъем для подключения, щиток с автоматами и УЗО в каждом модуле
  3. Двери Hörmann из окрашенного оцинкованного листа с утеплителем
  4. Окна ПВХ с газовым наполнением и интегрированными рольставнями
  5. Электроконвектора Stiebel Eltron
  6. LED светильники, розетки и выключатели
  7. Приточные регулируемые клапана и вытяжные электрические вентиляторы
Внутренняя отделка

Внутренняя отделка


Стен и потолка - ЛДПС 10мм, стальной окрашенный лист 10мм, ПВХ покрытие

Напольное покрытие - гетерогенный линолеум Tarrket, противоскользящий линолеум с заводом на стену, алюминиевый рифлёный лист.

Цветовое решение:

  1. Стены под светлый дуб + бежевый линолеум
  2. Белые стены + серый линолеум
Сантехническое исполнение

Сантехническое исполнение

Поставка в собранном виде и полной готовности к эксплуатации.

  1. Качественная сантехника
  2. Влагозащищенная электрика
  3. Оборудованные санузлы для инвалидов
  4. Бойлеры для нагрева воды
  5. Нескользящий линолеум с заводом на стену
  6. Износостойкая отделка
  7. Трапы в полу для отвода воды
Внешнее оформление

Внешнее оформление

Доступен декоративный фриз для верхней рамы этажа и козырьки над входами.
Возможен выбор цвета каркаса, стеновых панелей, дверей, фриза и козырьков. В базовой палитре предлагается 4 стандартных цвета, опционально возможна окраска в любой цвет по RAL.

Стандартные цвета:

  1. Бело-серый RAL 9002
  2. Серый RAL 7035
  3. Графит RAL 7024
  4. Синий RAL 5010
Габаритные размеры

Габаритные размеры

Соответствуют ISO-нормам.
Высота упаковки Transpack®: 648 мм
Средний вес блок-контейнера: 2000 кг

Несколько вариантов внутренней высоты: 2.340/2.540/2.700 мм

Внешние размеры Д/Ш

  • 10-футовый 2.989/2.435 мм
  • 16-футовый 4.885/2.435 мм
  • 20-футовый 6.055/2.435 мм
  • 24-футовый 7.335/2.435 мм
Конструктив контейнера

Конструктив контейнера

Массивный сборно-разборный каркас, состоящий из рамы крыши, пола и угловых стоек на болтовом соединении. Заменяемые стеновые элементы с заполнением. Замковая система панелей исключает теплопотери, формируя герметичный контур с полным отсутствием "мостиков холода". Порошковый тип окраски на автоматическом 5-ти фазном комплексе.

  • Толщина стали рамы 4 мм
  • Толщина металлического листа обшивки 6 мм
  • Толщина утеплителя МВ 60/100/150/200 мм
Схема разреза

Схема разреза

  • 1. Каркас из стального профиля холодного проката
  • 2. Внутренняя отделка на выбор
  • 3. Утопленные в раме розетки типа CEE
  • 4. Профилированный окрашенный оцинкованный лист
  • 5. Изоляция из минеральной ваты
  • 6. Спаянный на стыках коммерческий линолеум
  • 7. Цементно-стружечная плита
  • 8. Оцинкованный металлический лист
Кровля и водоотвод

Кровля и водоотвод

Кровля каждого блок-контейнера выполнена по технологии двойного фальца без саморезов и имеет минимальный уклон для отведения воды. В местах стыковки модулей устанавливается специальный герметичный полимерный уплотнитель, являющийся водосточным желобом.

Проработанная система водоотвода исключают необходимость в дополнительной общей кровле для модульного здания и позволяет соединять неограниченное количество модулей между собой.

Сдвоенный блок-модуль

Сдвоенный блок-модуль

Пример планировки модуля с санузлом на базе двух блок-контейнеров. Подходит для размещения сотрудников на территории предприятий и в городской среде.

  • Кол-во контейнеров 2
  • Площадь 30 м²
Здание из четырех<br>блок-контейнеров

Здание из четырех
блок-контейнеров

Пример планировки модульного здания на базе 4 блок-контейнеров с установленным санитарным блоком. Подходит для размещения строительного штаба, офиса продаж или кафе.

  • Кол-во контейнеров 4
  • Площадь 60 м²
Масштабный модульный комплекс

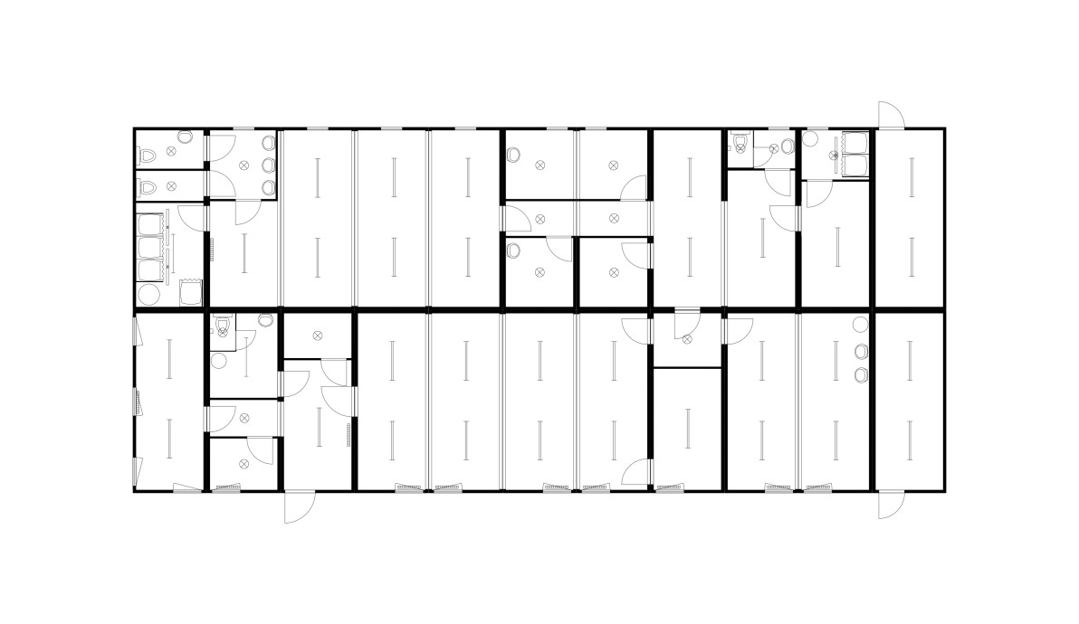
Масштабный модульный комплекс

Пример планировки модульного здания из 22-х блок-контейнеров. Площадь открывает доступ к множеству помещений, таких как: кабинеты, гардеробные, душевые, столовые, диспетчерские. Может быть использовано для размещения штата сотрудников среднего бизнес-сектора или производства.

  • Кол-во контейнеров 22
  • Площадь 330 м²
VNG

Почему заказывают у нас?

Доверие клиентов — наш главный капитал.
Мы формируем его через стабильность, профессионализм и внимание к каждой детали на всех этапах работы.

Выбор крупных компаний

Покупка модульного здания Containex — это инвестиция, а не расход: спустя 10 лет эксплуатации его можно продать на вторичном рынке с минимальным дисконтом — всего около 20% от начальной стоимости, что подтверждает высокую ликвидность.

Быстрое решение под ключ

От проекта и 3D-визуализации до монтажа и меблировки.
Мы предлагаем полный цикл работ для каждого клиента.
Готовое к эксплуатации здание за срок от 10-ти дней.

Гарантированно высокое качество

Гарантированно высокое качество

Профессионалы с многолетним опытом

Профессионалы с многолетним опытом

Оптимальные цены от первого импортера

Оптимальные цены от первого импортера

Индивидуальный подход к вашей задаче

Индивидуальный подход к вашей задаче

Послепродажный сервис и выкуп

Послепродажный сервис и выкуп

Наши проекты

Вопрос/ответ

Мы собрали самые частые вопросы от клиентов о модульных зданиях Containex и подготовили подробные ответы. Эти материалы помогут вам понять ключевые особенности, преимущества и нюансы эксплуатации каждого продукта — от монтажа и обслуживания до долговечности и технических характеристик.

Можно ли использовать модульные здания для круглогодичной эксплуатации, включая зимний период?+

Да, все модули Containex комплектуются утеплёнными стенами, потолком и полом с минеральной ватой. Это позволяет эксплуатировать здания при температуре до -30 °C при условии подключения отопления.

Какие коммуникации можно подключить в модульное здание?+

Наши модули комплектуются встроенной электрикой и при необходимости подключаются к водопроводу, канализации, вентиляции, отоплению и интернету. Всё оборудование сертифицировано и готово к эксплуатации.

Какие документы нужны для установки модульного здания?+

Для зданий категории сложности К5 (а это большинство объектов на базе Containex), в РБ не требуется разрешение на строительство и прохождение экспертизы проекта. Достаточно согласовать установку с местными службами.

Можно ли перепланировать или переместить модульное здание в будущем?+

Да, здания собираются из универсальных блоков и допускают перепланировку, расширение или демонтаж с повторной сборкой на новом участке без потери прочности и функциональности.

Соответствуют ли модульные здания санитарным и строительным нормам РБ?+

Да, здания соответствуют техническим регламентам и нормативам Республики Беларусь, включая санитарные, противопожарные и строительные требования для учреждений здравоохранения, образования и пр.

VNG

Ответим на ваши вопросы!

А так же, бесплатно и быстро выполним расчет стоимости Вашего здания, предложим планировочное решение и предоставим 3D визуализацию объекта.