Модульные санитарные комплексы и пропускники

Модульные санитарные комплексы и пропускники

Санитарные комплексы Containex — модульные блоки для стройки и вахтовых городков. Включают душевые, санузлы, раздевалки. Влагостойкая отделка, вентиляция, полная готовность.

Вход с соблюдением норм

Санитарные комплексы и пропускники на базе модульных решений Containex обеспечивают соблюдение санитарных норм при входе на производственные объекты, стройплощадки, вахтовые городки и другие контролируемые зоны. Такие модули комбинируют функции раздевалки, душевой, санузла и контрольного прохода.

Каждый санитарный комплекс собирается по принципу полной заводской готовности — с внутренней отделкой из влагостойких материалов, системой вентиляции, бойлером, электропроводкой и всеми необходимыми элементами для соблюдения санитарно-гигиенических требований.

Санитарный пропускник может включать:

  • тамбур с системой прохода
  • кабинеты санитарной обработки
  • душевые и туалетные модули
  • зону хранения одежды

Все элементы соответствуют нормативам Республики Беларусь, включая требования к вентиляции, герметичности, теплоизоляции и электробезопасности.

Функционал санитарных модулей

  • Санитарный блок — умывальники, санузлы, душевые кабины, вентиляция, система водоотведения
  • Санитарно-технический блок — технические отсеки, бойлерная, электроснабжение
  • Модульный санитарный контейнер — готовое решение с возможностью установки на открытых площадках
  • Санитарные контейнера, душевые и санитарные модули могут поставляться отдельно или в составе комплекса
  • Доступны сан пропускники с интеграцией турникетов, систем учёта и дезинфекции
     

Как заказать санитарный блок

VN Group предлагает как типовые, так и адаптированные под проект решения: от компактных санитарных узлов до полноценных пропускных комплексов.
Вы можете купить санитарный блок с готовой разводкой, вентиляцией и отделкой или заказать санитарный пропускник в нужной конфигурации — с учётом нормативов, логистики и условий эксплуатации. Поставка и обслуживание санитарных комплексов организованы по всей территории страны.

В комплекте

В комплекте

  1. Модульная электрика по ГОСТу, встроенная в крышу и стеновые панели
  2. Внешний CEE-разъем для подключения, щиток с автоматами и УЗО в каждом модуле
  3. Двери Hörmann из окрашенного оцинкованного листа с утеплителем
  4. Окна ПВХ с газовым наполнением и интегрированными рольставнями
  5. Электроконвектора Stiebel Eltron
  6. LED светильники, розетки и выключатели
  7. Приточные регулируемые клапана и вытяжные электрические вентиляторы
Внутренняя отделка

Внутренняя отделка


Стен и потолка - ЛДПС 10мм, стальной окрашенный лист 10мм, ПВХ покрытие

Напольное покрытие - гетерогенный линолеум Tarrket, противоскользящий линолеум с заводом на стену, алюминиевый рифлёный лист.

Цветовое решение:

  1. Стены под светлый дуб + бежевый линолеум
  2. Белые стены + серый линолеум
Душевые модули

Душевые модули


Включают в себя:
Душевые кабины из бесшовного стеклопластика.
Лоток с двумя или четырьмя умывальными раковинами.
Бойлер для нагрева воды.
Проточный водонагреватель
Трапы для вывода воды в полу.

Экономичные опции:
Небьющиеся металлические зеркала.
Автоматический вентилятор с датчиком влажности.

Туалетные кабины

Туалетные кабины


Включают в себя:
Влагостойкую обшивку из металлического листа.
Нескользящий линолеум с заводом на стену.
Санитарные кабины для людей с ограниченными физическими возможностями согласно DIN 18040-1.

Экономичные опции:
Сливной бачок с двухрежимной системой слива.
Нажимной порционный смеситель.
Датчик движения для управления светом.

Подключение

Подключение

Ввод водопровода через пол или стену блок-контейнера, с помощью труб диаметром:
½, ¾ или 1 дюйм
Вход и выход трубопроводов утоплены в панели.

В базовой комплектации:
Фильтр грубой очистки (степень очистки 500 мкм).
Редуктор давления (редукционный клапан).
Манометр.
Полипропиленовые трубы PPR PN20

Возможно подключение к накопительной ёмкости для канализации

Внешнее оформление

Внешнее оформление

Доступен декоративный фриз для верхней рамы этажа и козырьки над входами.
Возможен выбор цвета каркаса, стеновых панелей, дверей, фриза и козырьков. В базовой палитре предлагается 4 стандартных цвета, опционально возможна окраска в любой цвет по RAL.

Стандартные цвета:

  1. Бело-серый RAL 9002
  2. Серый RAL 7035
  3. Графит RAL 7024
  4. Синий RAL 5010
Габаритные размеры

Габаритные размеры

Соответствуют ISO-нормам.
Высота упаковки Transpack®: 648 мм
Средний вес блок-контейнера: 2000 кг

Несколько вариантов внутренней высоты: 2.340/2.540/2.700 мм

Внешние размеры Д/Ш

  • 10-футовый 2.989/2.435 мм
  • 16-футовый 4.885/2.435 мм
  • 20-футовый 6.055/2.435 мм
  • 24-футовый 7.335/2.435 мм
Конструктив контейнера

Конструктив контейнера

Массивный сборно-разборный каркас, состоящий из рамы крыши, пола и угловых стоек на болтовом соединении. Заменяемые стеновые элементы с заполнением. Замковая система панелей исключает теплопотери, формируя герметичный контур с полным отсутствием "мостиков холода". Порошковый тип окраски на автоматическом 5-ти фазном комплексе.

  • Толщина стали рамы 4 мм
  • Толщина металлического листа обшивки 6 мм
  • Толщина утеплителя МВ 60/100/150/200 мм
Схема разреза

Схема разреза

  • 1. Каркас из стального профиля холодного проката
  • 2. Внутренняя отделка на выбор
  • 3. Утопленные в раме розетки типа CEE
  • 4. Профилированный окрашенный оцинкованный лист
  • 5. Изоляция из минеральной ваты
  • 6. Спаянный на стыках коммерческий линолеум
  • 7. Цементно-стружечная плита
  • 8. Оцинкованный металлический лист
Кровля и водоотвод

Кровля и водоотвод

Кровля каждого блок-контейнера выполнена по технологии двойного фальца без саморезов и имеет минимальный уклон для отведения воды. В местах стыковки модулей устанавливается специальный герметичный полимерный уплотнитель, являющийся водосточным желобом.

Проработанная система водоотвода исключают необходимость в дополнительной общей кровле для модульного здания и позволяет соединять неограниченное количество модулей между собой.

Одиночный санитарный контейнер

Одиночный санитарный контейнер

Пример планировки санитарного модуля на базе одного блок-контейнера, разделенного на 2 секции: с туалетными и душевыми кабинами. Подходит для размещения на строительных, спортивных и производственных объектах.

  • Кол-во контейнеров 1
  • Площадь 15 м²
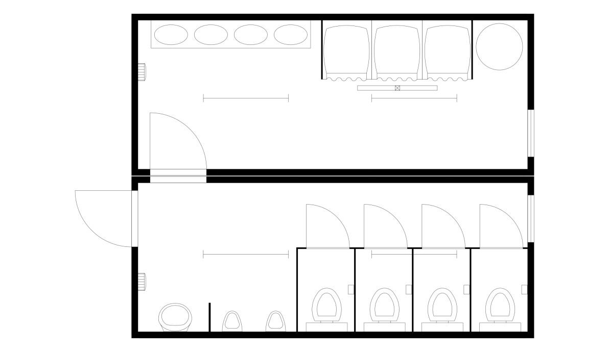
Сдвоенный санитарный модуль

Сдвоенный санитарный модуль

Пример планировки из двух блок-контейнеров, разделенных на 2 секции: с душевыми и туалетными кабинами. Подходит для размещения на строительных и производственных объектах.

  • Кол-во контейнеров 2
  • Площадь 30 м²
VNG

Почему заказывают у нас?

Доверие клиентов — наш главный капитал.
Мы формируем его через стабильность, профессионализм и внимание к каждой детали на всех этапах работы.

Выбор крупных компаний

Покупка модульного здания Containex — это инвестиция, а не расход: спустя 10 лет эксплуатации его можно продать на вторичном рынке с минимальным дисконтом — всего около 20% от начальной стоимости, что подтверждает высокую ликвидность.

Быстрое решение под ключ

От проекта и 3D-визуализации до монтажа и меблировки.
Мы предлагаем полный цикл работ для каждого клиента.
Готовое к эксплуатации здание за срок от 10-ти дней.

Гарантированно высокое качество

Гарантированно высокое качество

Профессионалы с многолетним опытом

Профессионалы с многолетним опытом

Оптимальные цены от первого импортера

Оптимальные цены от первого импортера

Индивидуальный подход к вашей задаче

Индивидуальный подход к вашей задаче

Послепродажный сервис и выкуп

Послепродажный сервис и выкуп

Вопрос/ответ

Мы собрали самые частые вопросы от клиентов о модульных зданиях Containex и подготовили подробные ответы. Эти материалы помогут вам понять ключевые особенности, преимущества и нюансы эксплуатации каждого продукта — от монтажа и обслуживания до долговечности и технических характеристик.

Можно ли использовать модульные здания для круглогодичной эксплуатации, включая зимний период?+

Да, все модули Containex комплектуются утеплёнными стенами, потолком и полом с минеральной ватой. Это позволяет эксплуатировать здания при температуре до -30 °C при условии подключения отопления.

Какие коммуникации можно подключить в модульное здание?+

Наши модули комплектуются встроенной электрикой и при необходимости подключаются к водопроводу, канализации, вентиляции, отоплению и интернету. Всё оборудование сертифицировано и готово к эксплуатации.

Можно ли перепланировать или переместить модульное здание в будущем?+

Да, здания собираются из универсальных блоков и допускают перепланировку, расширение или демонтаж с повторной сборкой на новом участке без потери прочности и функциональности.

Соответствуют ли модульные здания санитарным и строительным нормам РБ?+

Да, здания соответствуют техническим регламентам и нормативам Республики Беларусь, включая санитарные, противопожарные и строительные требования для учреждений здравоохранения, образования и пр.

Почему многие компании выбирают модульные решения Containex?+

Готовые модули Containex позволяют быстро создать функциональное пространство там, где обычный подход требует месяцев согласований и работы с нуля. Вместо стройки — аккуратная сборка, вместо черновых этапов — чистовая готовность. Благодаря заводской комплектации и продуманной логистике, такие решения особенно востребованы в условиях, где важна скорость, предсказуемость и аккуратность на площадке. А если учитывать остаточную стоимость блок-контейнеров до 80 % на вторичном рынке, модули Containex — это устойчивая инвестиция на долгие годы.

VNG

Ответим на ваши вопросы!

А так же, бесплатно и быстро выполним расчет стоимости Вашего здания, предложим планировочное решение и предоставим 3D визуализацию объекта.